Kích thước phòng ngủ đóng vai trò quan trọng trong việc đảm bảo sự tiện nghi và thẩm mỹ cho không gian sống. Một căn phòng được tính toán kích thước hợp lý sẽ mang lại cảm giác thoải mái. Tối ưu công năng và phù hợp nhu cầu của từng đối tượng sử dụng. Bài viết này từ Nội Thất Đức Tú sẽ giúp bạn hiểu rõ cách tính kích thước, các tiêu chuẩn phổ biến theo công năng và đối tượng. Và cùng nhiều mẫu phòng ngủ đẹp theo từng khoảng kích thước. Ngoài ra, bạn còn nhận được những bí quyết thiết kế thông minh để tối ưu không gian. Đảm bảo mỗi phút giây nghỉ ngơi đều là sự tận hưởng trọn vẹn.
>>> Xem thêm:
- Sơn Phòng Ngủ Màu Kem Và Những Thiết Kế Phòng Ngủ Ấn Tượng
- Cách Phối Màu Phòng Ngủ Đẹp – Dễ Ứng Dụng
- 20 Ý Tưởng Decor Phòng Ngủ Vintage Đậm Chất Hoài Cổ
Kích Thước Phòng Ngủ Tiêu Chuẩn Là Bao Nhiêu?
kích thước phòng ngủ tiêu chuẩn thường phụ thuộc vào công năng và kích thước nhà để đo đạc. Khi chọn kích thước, cần cân nhắc sự thoải mái và khả năng bố trí nội thất. kích thước hợp lý giúp tối ưu công năng và tạo cảm giác thoáng đãng. Ngoài ra, nên đảm bảo không gian dễ di chuyển và ánh sáng tự nhiên đầy đủ. Một số kích thước tiêu chuẩn hiện nay:
- Kích thước phòng ngủ tối thiểu cho căn hộ chung cư khoảng 10 m².
- Kích thước phòng ngủ nhà cấp 4 phổ biến từ 15 – 25 m².
- Phòng ngủ biệt thự có thể rộng lên đến 50 m² với không gian rộng rãi.
- Thiết kế phòng ngủ tích hợp nhà vệ sinh hoặc phòng thay đồ cần tối thiểu 16 – 20 m².
- Phòng ngủ dành cho vợ chồng cần ít nhất 12 m² nếu không bố trí nhà vệ sinh và phòng thay đồ.
- Phòng ngủ nhỏ cho trẻ em nên rộng khoảng 9 – 12 m²


Cách Tính kích thước Phòng Ngủ Chính Xác
Công thức tính kích thước phòng ngủ theo kích thước thực tế
Để thiết kế phòng ngủ hợp lý, trước hết cần biết cách tính kích thước chính xác. Cách tính kích thước phòng ngủ cơ bản theo công thức sau.
Kích thước phòng ngủ: Chiều dài X chiều rộng
Ví dụ phòng dài 4m, rộng 3m thì kích thước là 12 m². Nếu phòng có nhiều phần không vuông vức, hãy chia thành các hình nhỏ và cộng kích thước lại. Đối với phòng có ban công hoặc gác lửng, cần tính riêng phần đó rồi cộng vào tổng kích thước. Khi đo, nên loại trừ phần cột, hốc tường hoặc khu vực không thể sử dụng. Ngoài kích thước tổng, cần chú ý kích thước sử dụng thực tế để bố trí nội thất hợp lý. Phương pháp này giúp xác định chính xác nhu cầu không gian và tối ưu thiết kế.


Các yếu tố ảnh hưởng đến cách tính kích thước phòng ngủ
Khi tính kích thước phòng ngủ, cần xem xét nhiều yếu tố khác nhau để kết quả chính xác và phù hợp. Kích thước và hình dạng phòng quyết định cách đo đạc và tính toán.
- Phòng vuông hoặc chữ nhật sẽ dễ đo và tối ưu hơn phòng méo hoặc hẹp dài.
- Các khu vực phụ trợ như ban công, gác lửng hoặc nhà vệ sinh khép kín cần tính riêng rồi cộng vào kích thước tổng.
- Vị trí cột, tường dày, hốc tường làm giảm kích thước sử dụng thực tế.
- Ngoài ra, nhu cầu công năng, phong cách thiết kế và bố trí nội thất cũng ảnh hưởng đến kích thước phù hợp.
Hiểu rõ các yếu tố này giúp bạn lựa chọn không gian vừa thẩm mỹ vừa tiện nghi.
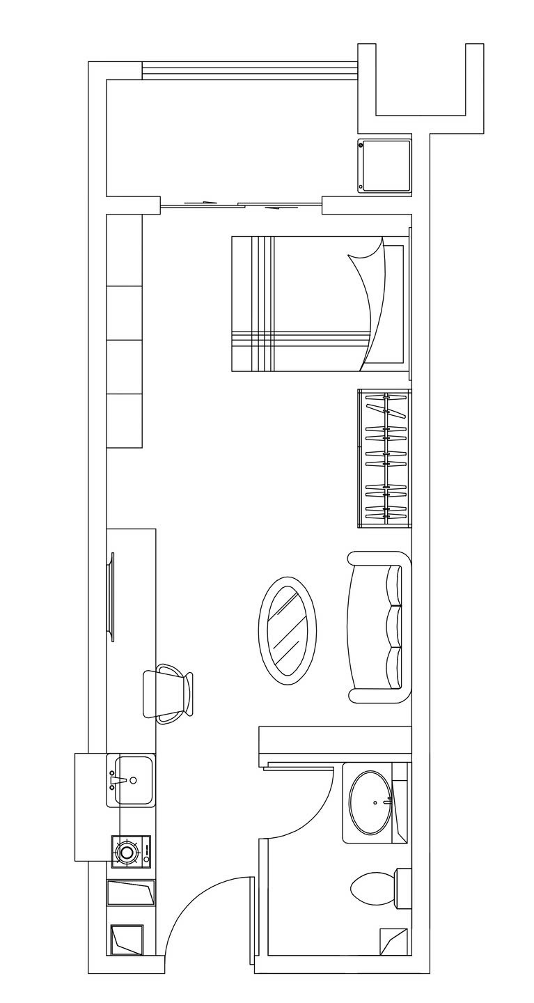
Tuy nhiên, mỗi kiểu thiết kế phòng ngủ lại cần có cách tính riêng. kích thước phòng ngủ tiêu chuẩn được xác định bằng kích thước toàn bộ mặt bằng căn phòng. Với phòng ngủ master có thêm nhà vệ sinh hoặc phòng thay đồ, cần cộng thêm kích thước các khu vực này. Phòng ngủ rộng thiết kế mở và liên thông với không gian khác sẽ tính theo tổng kích thước nội thất thực tế. Gồm giường ngủ, tủ quần áo, bàn trang điểm và các khu chức năng. Cách tiếp cận này giúp tính toán sát nhu cầu sử dụng và tránh lãng phí kích thước.

Tiêu chuẩn kích thước phòng ngủ theo công năng
Kích thước phòng ngủ Master
Phòng ngủ Master là nơi nghỉ ngơi chính nên luôn được ưu tiên về kích thước và vị trí. Kích thước tiêu chuẩn của phòng Master khi chỉ gồm giường ngủ và tủ áo quần và bàn trang điểm thường từ 20 – 25 m². Nếu thiết kế thêm nhà vệ sinh khép kín hoặc phòng thay đồ, kích thước cần tăng lên từ 25 – 35 m². Để đảm bảo sự tiện nghi và thoải mái. Với biệt thự, căn hộ cao cấp hoặc thiết kế sang trọng kích thước phòng master có thể đạt 40–50 m² nhằm tạo không gian sống rộng rãi và sang trọng. Ngoài ra, việc chọn kích thước còn phụ thuộc vào nhu cầu sinh hoạt, số lượng nội thất và ngân sách đầu tư.
Một phòng ngủ master hợp lý không chỉ rộng mà còn được bố trí khoa học. Khu vực giường ngủ nên đặt ở vị trí thông thoáng, tránh ánh nắng trực tiếp nhưng vẫn đón được gió và ánh sáng tự nhiên. Phòng thay đồ cần sắp xếp gần khu vực vệ sinh để tiện sử dụng. Nếu kích thước đủ lớn, có thể bố trí thêm bàn làm việc, ghế thư giãn hoặc góc đọc sách để tăng công năng. Việc phân chia hợp lý từng khu vực giúp đảm bảo lối đi thoải mái và tối ưu kích thước sử dụng.

Kích thước phòng ngủ có toilet
Phòng ngủ có toilet khép kín ngày càng phổ biến nhờ tính tiện nghi và riêng tư. Kích thước tiêu chuẩn thường từ 16–20 m² nếu toilet nhỏ gọn chỉ phục vụ nhu cầu cơ bản. Với toilet rộng hơn, có bồn tắm và khu thay đồ, kích thước phòng ngủ nên tăng lên 22–28 m² để không gian vẫn thoáng. Trong thiết kế nhà phố, toilet thường đặt ở góc cuối phòng để tiết kiệm kích thước. Biệt thự hoặc căn hộ cao cấp có thể bố trí toilet lớn hơn, kèm vách ngăn kính và khu trang điểm. Kích thước phù hợp đảm bảo sự cân đối giữa không gian nghỉ ngơi và sinh hoạt cá nhân.
Khi thiết kế phòng ngủ có toilet, cần lưu ý bố trí thông gió tốt để tránh ẩm mốc và mùi khó chịu. Toilet nên tách biệt bằng vách kính, tường hoặc cửa lùa để giữ thẩm mỹ và tạo sự riêng tư. Lối đi giữa giường và toilet phải đủ rộng để di chuyển thoải mái. Nếu phòng kết hợp thêm bàn làm việc hoặc góc thư giãn, cần sắp xếp nội thất hợp lý để không gian không bị chật. Vật liệu chống thấm và dễ vệ sinh nên được ưu tiên cho khu vực toilet. Một phòng ngủ có toilet đạt chuẩn sẽ mang lại sự tiện nghi, hiện đại và nâng cao chất lượng sinh hoạt hàng ngày cho gia chủ.

Kích thước phòng ngủ có phòng thay đồ
Phòng ngủ tích hợp phòng thay đồ là lựa chọn sang trọng, mang lại sự tiện nghi và gọn gàng. Kích thước tối thiểu cho phòng ngủ dạng này thường từ 20–25 m² nếu phòng thay đồ nhỏ và đơn giản. Với không gian thay đồ rộng rãi, nhiều tủ kệ và gương lớn, kích thước phòng ngủ nên tăng lên 28–35 m² để đảm bảo sự thoải mái khi sử dụng. Biệt thự hoặc căn hộ cao cấp có thể bố trí phòng thay đồ riêng biệt nhưng vẫn liên thông với phòng ngủ, giúp tối ưu công năng và tạo cảm giác đẳng cấp. Kích thước phù hợp giúp việc lưu trữ quần áo, giày dép và phụ kiện khoa học hơn.
Khi thiết kế phòng ngủ có phòng thay đồ, nên chọn vị trí gần cửa toilet để thuận tiện sinh hoạt. Không gian thay đồ cần ánh sáng đầy đủ và hệ thống thông gió tốt để tránh ẩm mốc. Nội thất nên sử dụng tủ kịch trần hoặc tủ âm tường để tiết kiệm kích thước. Lối đi giữa các kệ và tủ cần đủ rộng để di chuyển thoải mái. Nếu kích thước hạn chế, có thể dùng rèm hoặc cửa lùa để ngăn cách thay vì tường cố định. Thiết kế thông minh sẽ giúp không gian thay đồ trở thành điểm nhấn của phòng ngủ, đồng thời nâng cao trải nghiệm sử dụng hàng ngày cho gia chủ.

Kích thước phòng ngủ có ban công
Phòng ngủ có ban công mang lại không gian thoáng mát, nhiều ánh sáng và tầm nhìn đẹp. Kích thước tiêu chuẩn cho kiểu phòng này thường từ 12–20 m² tùy mục đích sử dụng. Ban công nhỏ khoảng 2–4 m² chỉ đủ đặt vài chậu cây hoặc ghế thư giãn. Với ban công rộng hơn 5–7 m², có thể thiết kế khu uống trà, đọc sách hoặc trồng cây xanh. Khi tính kích thước phòng ngủ, cần cộng cả phần ban công nếu thiết kế liên thông và sử dụng chung nền. Việc phân bổ kích thước hợp lý giữa phòng ngủ và ban công giúp không gian hài hòa, tiện nghi và thẩm mỹ.
Khi bố trí phòng ngủ có ban công, nên chọn hướng đón gió và ánh sáng phù hợp. Cửa kính lớn giúp tận dụng tối đa ánh sáng tự nhiên, đồng thời mở rộng tầm nhìn. Nếu ban công quay hướng nắng gắt, cần trang bị rèm chống nắng hoặc mái che để bảo vệ nội thất bên trong. Lan can ban công nên đảm bảo an toàn và phù hợp với phong cách tổng thể của phòng. Nội thất phòng ngủ cần sắp xếp sao cho không chắn lối ra ban công. Một thiết kế hợp lý sẽ biến ban công thành phần mở rộng của phòng ngủ, vừa tăng giá trị thẩm mỹ vừa nâng cao trải nghiệm sống hàng ngày.

Kích thước tiêu chuẩn phòng ngủ theo đối tượng
Kích thước tối thiểu cho phòng ngủ cá nhân
Kích thước phòng ngủ tiêu chuẩn sẽ thay đổi tùy theo đối tượng sử dụng và nhu cầu sinh hoạt. Phòng ngủ cho trẻ em thường nhỏ gọn hơn, ưu tiên không gian vui chơi và học tập. Người lớn cần phòng ngủ rộng hơn để bố trí đầy đủ giường, tủ quần áo và các tiện nghi khác. Phòng ngủ cho người cao tuổi nên đủ rộng để di chuyển an toàn và dễ tiếp cận đồ dùng. Ngoài ra, kích thước còn phụ thuộc vào việc phòng dùng cho một người hay hai người. Xác định đúng tiêu chuẩn theo đối tượng giúp tối ưu kích thước và tạo sự thoải mái khi sử dụng hàng ngày.
Phòng ngủ cá nhân thường được thiết kế cho một người nên kích thước tối thiểu từ 9–12 m². Kích thước này đủ để bố trí giường đơn, tủ quần áo nhỏ và bàn học hoặc bàn làm việc. Với kích thước hạn chế, nên chọn nội thất đa năng để tiết kiệm không gian và tăng tiện ích. Phòng ngủ cá nhân dành cho trẻ em có thể nhỏ hơn một chút nhưng cần đảm bảo lối đi và không gian lưu trữ. Nếu muốn thêm góc đọc sách hoặc kệ trưng bày, kích thước nên đạt từ 12–15 m². Bố trí hợp lý sẽ giúp phòng cá nhân vừa gọn gàng vừa đáp ứng nhu cầu sinh hoạt hàng ngày.

Kích thước phòng ngủ 2 vợ chồng/ phòng ngủ Master
Phòng ngủ 2 vợ chồng, hay còn gọi là phòng ngủ master, thường là không gian rộng nhất trong nhà. Kích thước tiêu chuẩn từ 20–25 m² khi chỉ gồm giường ngủ, tủ quần áo và bàn trang điểm. Nếu tích hợp thêm nhà vệ sinh khép kín hoặc phòng thay đồ, kích thước cần tăng lên 25–35 m² để đảm bảo tiện nghi. Trong biệt thự hoặc căn hộ cao cấp, phòng master có thể rộng 40–50 m², tạo cảm giác sang trọng và thoải mái tối đa. Kích thước hợp lý giúp không gian vừa đáp ứng nhu cầu sinh hoạt vừa giữ được sự hài hòa thẩm mỹ.
Khi thiết kế phòng ngủ master, cần chú ý bố trí khoa học để tận dụng hết kích thước. Giường ngủ nên đặt ở vị trí thông thoáng, tránh ánh nắng gắt nhưng vẫn đón được gió và ánh sáng tự nhiên. Khu vực thay đồ nên gần toilet để tiện di chuyển và sử dụng. Nếu kích thước cho phép, có thể bố trí thêm bàn làm việc, ghế thư giãn hoặc góc đọc sách. Nội thất nên chọn kích thước phù hợp và giữ lối đi rộng rãi để tạo cảm giác thoáng. Một phòng ngủ master được thiết kế hợp lý sẽ mang lại sự thoải mái, tiện nghi và thể hiện gu thẩm mỹ của gia chủ.

Kích thước phòng ngủ cho gia đình có trẻ nhỏ
Phòng ngủ cho gia đình có trẻ nhỏ cần đảm bảo không gian nghỉ ngơi chung và khu vui chơi an toàn. Kích thước tối thiểu nên từ 16–20 m² khi chỉ gồm giường đôi, tủ quần áo và góc sinh hoạt. Nếu muốn thêm khu vui chơi, kệ sách hoặc bàn học cho trẻ, kích thước nên từ 20–25 m² để giữ sự thoáng đãng. Trong thiết kế nhà phố, phòng ngủ chung cho bố mẹ và con nhỏ thường ưu tiên sự ấm cúng và tiện lợi. Cách bố trí nội thất phải tính đến nhu cầu sinh hoạt của cả gia đình.
Khi thiết kế phòng ngủ dạng này, nên chọn giường rộng hoặc giường đôi kết hợp giường phụ cho trẻ. Lối đi cần rộng rãi để trẻ di chuyển an toàn, tránh va chạm. Vật liệu nội thất nên thân thiện, không có góc nhọn và dễ vệ sinh. Khu vực vui chơi có thể đặt gần cửa sổ để tận dụng ánh sáng tự nhiên. Nếu có kích thước lớn hơn, có thể phân tách khu ngủ và khu sinh hoạt bằng tủ hoặc vách ngăn nhẹ. Một phòng ngủ cho gia đình có trẻ nhỏ cần hài hòa giữa sự tiện nghi, an toàn và tạo môi trường phát triển lành mạnh cho trẻ.

Mẫu Phòng Ngủ Đẹp Theo Kích Thước
Phòng ngủ đẹp 9 – 12 m²
Phòng ngủ 9–12 m² phù hợp cho không gian nhỏ hoặc phòng cá nhân. Kích thước này đủ để bố trí giường đơn, tủ quần áo và bàn học gọn gàng. Nên ưu tiên nội thất đa năng như giường có hộc kéo hoặc bàn gấp để tiết kiệm kích thước. Màu sắc sáng và ánh sáng tự nhiên giúp không gian trông rộng hơn. Khu vực lưu trữ nên tận dụng tủ kịch trần hoặc kệ treo tường. Việc sắp xếp hợp lý giúp phòng ngủ nhỏ vẫn đẹp và tiện nghi.
Khi thiết kế, nên chọn phong cách tối giản để giảm cảm giác chật chội. Rèm cửa mỏng và gương lớn có thể tạo hiệu ứng mở rộng không gian. Tránh bố trí quá nhiều đồ trang trí hoặc nội thất cồng kềnh. Nếu có cửa sổ, nên đặt giường gần nguồn sáng để tạo sự ấm áp. Phòng ngủ 9–12 m² có thể trở nên ấn tượng nhờ cách phối màu hài hòa và điểm nhấn nhẹ nhàng.

Phòng ngủ đẹp 12 – 16 m²
Phòng ngủ 12–16 m² thích hợp cho phòng đôi nhỏ hoặc phòng cá nhân rộng rãi. Kích thước này đủ để bố trí giường đôi, tủ quần áo lớn và bàn làm việc. Có thể thêm ghế thư giãn hoặc kệ sách nếu sắp xếp hợp lý. Màu sắc trung tính kết hợp ánh sáng tự nhiên tạo cảm giác sang trọng. Nên tận dụng góc phòng để đặt tủ hoặc bàn nhằm tối ưu không gian.
Với kích thước này, có thể áp dụng phong cách hiện đại, Scandinavian hoặc tân cổ điển tùy sở thích. Nên dùng đèn thả trần hoặc đèn ngủ để tạo không khí ấm áp. Nếu muốn, có thể bố trí vách ngăn nhẹ để phân tách khu ngủ và khu làm việc. Một thiết kế hài hòa sẽ mang lại sự thoải mái và thẩm mỹ cho phòng ngủ.

Phòng ngủ đẹp 16 – 25 m²
Phòng ngủ 16–25 m² thường xuất hiện trong căn hộ cao cấp hoặc nhà phố rộng rãi. Kích thước này đủ để bố trí giường king-size, tủ quần áo lớn, bàn trang điểm và khu làm việc. Gia chủ có thể thêm ghế sofa, kệ sách hoặc góc thư giãn mà vẫn thoải mái. Không gian rộng giúp áp dụng nhiều phong cách thiết kế như hiện đại, tân cổ điển hoặc tối giản cao cấp. Màu sắc và ánh sáng được lựa chọn khéo léo sẽ làm nổi bật sự sang trọng.
Với kích thước này, có thể thiết kế phòng ngủ master kèm nhà vệ sinh hoặc phòng thay đồ riêng. Nội thất nên sắp xếp theo từng khu vực rõ ràng để tối ưu công năng. Sử dụng thảm trải sàn, tranh nghệ thuật và đèn trang trí sẽ tăng tính thẩm mỹ. Ánh sáng tự nhiên và cửa sổ lớn tạo cảm giác thông thoáng, nâng cao trải nghiệm nghỉ ngơi.

Phòng ngủ nhỏ
Phòng ngủ nhỏ thường dưới 9 m², phù hợp cho không gian hạn chế hoặc nhà ở đô thị. Khi kích thước hạn chế, nên ưu tiên nội thất đa năng như giường kết hợp tủ, bàn gấp hoặc kệ treo. Màu sắc sáng, gương lớn và ánh sáng hợp lý sẽ giúp không gian trông rộng hơn. Bố trí cửa sổ hoặc ô thông gió để tăng thông thoáng và giảm bí bách. Tránh đặt đồ nội thất quá cồng kềnh hoặc nhiều chi tiết trang trí.
Thiết kế tối giản là lựa chọn tối ưu cho phòng ngủ nhỏ. Nên chọn rèm mỏng, đồ nội thất nhẹ và ít họa tiết. Tận dụng góc tường hoặc khoảng trống dưới gầm giường để lưu trữ. Sử dụng kệ treo sát trần hoặc tủ âm tường giúp tối đa kích thước sàn. Dù nhỏ, phòng vẫn có thể đẹp và tiện nghi nếu sắp xếp hợp lý.

Lưu Ý Khi Thiết Kế Kích Thước Phòng Ngủ Tiêu Chuẩn
Bố trí nội thất hợp lý để tối ưu không gian
Bố trí nội thất hợp lý giúp phòng ngủ vừa tiện nghi vừa giữ được sự thông thoáng. Trước tiên, cần xác định vị trí giường ngủ sao cho thuận tiện và không chắn cửa ra vào hoặc cửa sổ. Khoảng cách từ giường tới tường hoặc tủ nên từ 60–80 cm để di chuyển dễ dàng. Tủ quần áo nên đặt sát tường, ưu tiên kiểu cánh trượt để tiết kiệm kích thước. Bàn làm việc hoặc bàn trang điểm nên bố trí gần nguồn sáng tự nhiên để tận dụng ánh sáng ban ngày.
Với phòng nhỏ, nên sử dụng nội thất đa năng như giường kết hợp ngăn kéo hoặc bàn gấp. Kệ treo tường giúp tận dụng chiều cao phòng và giữ sàn gọn gàng. Trong phòng rộng, có thể phân tách không gian bằng thảm hoặc vách ngăn nhẹ để tạo khu vực thay đồ, đọc sách. Luôn ưu tiên lối đi rộng rãi và sắp xếp nội thất gọn gàng để không gian thông thoáng. Màu sắc và ánh sáng cũng hỗ trợ cảm giác rộng rãi, nên phối hợp đồng bộ với nội thất để tối ưu thẩm mỹ và công năng.

Lựa chọn màu sắc và ánh sáng phù hợp
Màu sắc và ánh sáng quyết định rất lớn đến cảm giác không gian phòng ngủ. Với phòng nhỏ, nên chọn gam màu sáng như trắng, be hoặc pastel để tạo hiệu ứng rộng rãi. Phòng rộng có thể sử dụng tông màu trung tính hoặc trầm để mang lại cảm giác ấm áp. Màu sắc nội thất cần hài hòa với màu tường, tránh quá nhiều màu tương phản gây rối mắt. Sử dụng điểm nhấn bằng gối, tranh hoặc thảm để tạo chiều sâu thẩm mỹ.
Ánh sáng trong phòng ngủ cần vừa đủ và dễ điều chỉnh. Ánh sáng tự nhiên nên được tận dụng tối đa bằng cửa sổ lớn hoặc ô thông gió. Đèn trần, đèn ngủ, và đèn hắt tường giúp thay đổi không khí phòng theo từng thời điểm. Với người thích đọc sách, nên bố trí thêm đèn bàn có ánh sáng vàng dịu. Rèm cửa mỏng giúp ánh sáng tự nhiên lọt vào nhưng vẫn đảm bảo riêng tư. Kết hợp gương lớn đối diện cửa sổ để tăng độ sáng và cảm giác rộng rãi.

Giải pháp tiết kiệm kích thước cho phòng ngủ nhỏ
Phòng ngủ nhỏ cần sắp xếp nội thất khoa học để đảm bảo vừa tiện nghi vừa thông thoáng. Sử dụng giường đa năng tích hợp ngăn kéo hoặc tủ bên dưới để tăng không gian lưu trữ. Chọn tủ quần áo cánh trượt thay vì cánh mở để tiết kiệm khoảng cách di chuyển. Kệ treo tường là lựa chọn hiệu quả để giữ đồ dùng gọn gàng và tận dụng chiều cao. Ưu tiên bàn gấp hoặc bàn treo có thể xếp gọn khi không dùng. Giữ sàn nhà trống nhiều nhất có thể để tạo cảm giác rộng rãi.
Màu sắc nhẹ nhàng giúp phòng nhỏ trông sáng hơn và rộng hơn. Gương lớn đặt ở vị trí hợp lý giúp phản chiếu ánh sáng và mở rộng không gian thị giác. Rèm cửa mỏng hoặc rèm roman giúp tiết kiệm kích thước so với rèm vải dày. Nội thất nên có thiết kế đơn giản, ít chi tiết rườm rà. Hạn chế số lượng đồ đạc, chỉ giữ lại những món thật sự cần thiết. Sắp xếp khoa học và tận dụng mọi góc trống sẽ biến phòng nhỏ thành nơi nghỉ ngơi thoải mái, tiện lợi và đẹp mắt.

Đảm bảo thông gió và sự thoải mái khi nghỉ ngơi
Thông gió tốt giúp phòng ngủ luôn thoáng mát, giảm độ ẩm và ngăn nấm mốc. Nên thiết kế cửa sổ ở vị trí đón gió tự nhiên và tránh hướng gió mạnh trực tiếp vào giường. Nếu phòng nhỏ, có thể kết hợp cửa sổ và ô thoáng để tăng lưu thông không khí. Hệ thống quạt trần hoặc quạt thông gió hỗ trợ điều hòa luồng khí khi thời tiết nóng. Vào mùa lạnh, cần che chắn hợp lý để tránh gió lùa gây khó chịu.
Không gian phòng ngủ cần duy trì nhiệt độ và độ ẩm hợp lý để đảm bảo giấc ngủ chất lượng. Chọn đệm và chăn phù hợp theo mùa, tránh quá dày hoặc quá mỏng. Bố trí giường ở vị trí yên tĩnh, tránh gần cửa ra vào hoặc khu vực ồn ào. Sử dụng rèm cửa điều chỉnh ánh sáng giúp kiểm soát độ sáng buổi sáng sớm. Cây xanh trong phòng vừa lọc không khí vừa tạo cảm giác thư giãn. Giữ phòng gọn gàng và sạch sẽ để luôn cảm thấy thoải mái khi nghỉ ngơi.







>>> Tham khảo thêm:
- Cải Tạo Phòng Ngủ Đẹp Tối Ưu Chi Phí
- Giải Pháp Tối Ưu Diện Tích: Tủ Quần Áo Kết Hợp Bàn Làm Việc Đa Năng
- Gợi Ý Các Loại Giường Ngủ Phù Hợp Cho Mọi Không Gian
Kết Luận
Việc thiết kế kích thước phòng ngủ tiêu chuẩn không chỉ tạo nên sự cân đối và tiện nghi mà còn góp phần nâng cao chất lượng cuộc sống. Từ cách tính kích thước, lựa chọn kiểu phòng ngủ phù hợp đến áp dụng các giải pháp tối ưu không gian, mỗi chi tiết đều ảnh hưởng trực tiếp đến sự thoải mái và thẩm mỹ của căn phòng. Với kinh nghiệm và sự am hiểu trong thiết kế – thi công nội thất, Nội Thất Đức Tú sẵn sàng đồng hành cùng bạn để biến ý tưởng về một phòng ngủ lý tưởng thành hiện thực. Hãy để chúng tôi giúp bạn sở hữu không gian nghỉ ngơi vừa đẹp, vừa chuẩn, vừa phản ánh phong cách sống của riêng bạn.

















Hotline